‘Ένα από τα μεγαλύτερα έργα που η εταιρία μας έχει εκτελέσει
στην Ελλάδα είναι οι Κινητοί Ηχομονωτικοί Τοίχοι του συνεδριακού κέντρου του
ξενοδοχειακού συμπλέγματος NAVARINO RESORTS που βρίσκεται στην ευρύτερη περιοχή της Πύλου, στην νότια
Πελοπόννησο. Οι Κινητοί τοίχοι του συνεδριακού κέντρου έχουν ύψος 8,1μ και πλάτος: 2 τεμ. Χ 33,5μ. και 2 τεμ. Χ45μ. Οι
κινητοί τοίχοι μπορούν να συνδεθούν κατά διαφόρους συνδυασμούς ώστε να
σχηματίζουν το επιθυμητό μέγεθος και τον αριθμό των αιθουσών που θα
εξυπηρετήσουν παράλληλες εκδηλώσεις του κέντρου. Ο συνδυασμός και η αποθήκευση
των πανέλων διεκολύνονται από ηλεκτροκίνητους μηχανισμούς αλλαγής τροχιάς στην
οροφή, που περιστρέφονται για να επιτρέπουν την αποθήκευση και την ανάπτυξη των
πανέλων κατά διαφόρους συνδυασμούς. Το σύστημα αυτό ελέγχεται από έναν κεντρικό
πίνακα με προγραμματιστές PLC
και αντίστοιχους ηλεκτρικούς διακόπτες εγατεστημένους σε κατάλληλες θέσεις. Η
ηχομόνωση των Κινητών Τοίχων είναι 53 dB (εργαστηριακή τιμή) και τα πανέλα έχουν επενδυθεί με
ηχοαπορροφητικό υλικό. Για έναν από τους κινητούς τοίχους υπάρχει παράλληλη
εναλλακτική θέση για λόγους μεγαλύτερης ευελιξία στη διαρρύθμιση των χώρων.
Την τακτική τεχνική συντήρηση του συστήματος έχει αναλάβει η εταιρία μας
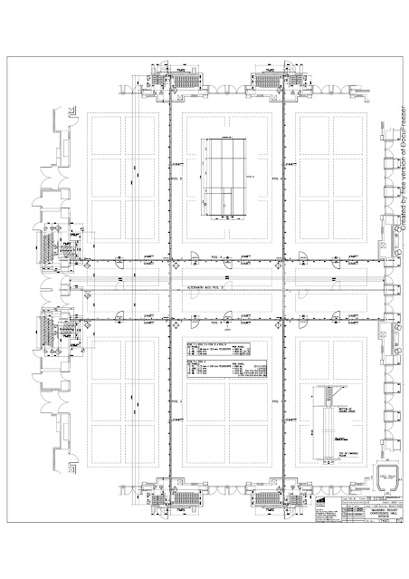
Παραθέτουμε φωτογραφίες από το συνεδριακό κέντρο κσθώς κσι
την κάτοψη ολόκληρου του χώρου. Οι εικόνες μεγεθύνονται με κλικ επάνω τους.
One of the
largest projects completed by our company in Greece is the installation of
Movable Sound-Insulated Walls in the convention center of the NAVARINO RESORTS
hotel complex, located in the greater area of the town Pylos in Southern
Peloponnese. These Movable Walls have a height of 8.1m, with respective widths
of 2 pieces at 33.5m and 2 pieces at 45m. They can be arranged in various
configurations to create the required number and size of spaces, enabling the
accommodation of simultaneous events. The combination and parking of the panels
are facilitated by a system of mechanical switches installed at the ceiling
height. The entire system is managed from a central array of programmable PLC
controllers and respective electrical switches installed at key positions. The
sound insulation of the Movable Walls is 53 dB (laboratory value), and all the
panels are clad with sound-absorbing material. Additionally, an alternative
parallel position has been foreseen for one of the Movable Walls, providing
extra flexibility in space management. Our company has undertaken the regular
technical maintenance of the system.
Below please find photos and the floor plan of the entire space. The images are magnified by clicking on them.
![]() |
| Κατά την εγκατάσταση - During installation |
![]() |
| Κατά την εγκατάσταση - During installation |
![]() |
| Κατά την εγκατάσταση - During installation |


















